Cadwin System. co. ltd - 네스팅 소프트웨어의 영원한 선두주자
  Cadwin System
  CadwinNesting
  EasyDesign
  SpisHull
  SmartLander
  SmartRudder
  SmartJig
  SmartWeld
  SmartPaint
  CableExpress
  PipeExpress
  BOMExpress
  Pipe/Duct Flow
  용역개발
  제품관리News
  기타관련자료
HOME > 제품소개 > SmartRuddder
 SmartRudder

SmartRudder 개요

- 배의 조타 역할을 하는 Rudder를 생산함에 있어서 선주/선급의
  다양한 조건을 만족하는 최적의 Rudder를 생산하기 위해서 다양한
  조건으로 Simulation이 가능한 프로그램이다.
- Smart Rudder 에서 Simulation 결과 생성된 Model을 기본으로
  AVAVA Marine에 3D Model 및 2D Drawing을 자동으로 생성해 주는
  기능을 포함하고 있다.

주요기능

- Surface 자동 생성하며 생성된 Surface 이용 추가 정보 산출 가능
- Rule Base의 자동 Modeling 기능
- Rule 기반으로 Rudder 자동 Modeling
- Rudder 전용 Modeling Program이기 때문에 생성 및 조작 편리
- 최적의 Weight 산출 기능
- 하나의 호선을 대상으로 Model 형상 정보, 배치 정보, 속성 값 등을
  조정하면서 최적의 Weight를 가지는 Case를 비교 산출 가능
- Curved Panel 및 Hole, Scallop 등 세밀한 영역에 대한 정확한
  Weight 값 계산 가능
- AM Interface 기능
- Smart Rudder상 정보를 AM에 동일하게 정보 생성
- 기타 부가 정보 산출 기능
- Section Modulus, Wcog 등 Model 정보 활용하여 부가 정보 산출
  가능
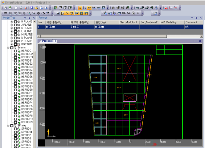
01. Surface 자동 생성

- 외부에서 Surface의 Curve Offset 정보 File을 읽은 후 분석하여
  Surface 형상 정보를 View상에 표시
- Main Surface 외, Skeg, Trunk, Hub, Roundbar Surface 자동 생성
02. 자동 Modeling

- View Sequence 순서에 의한 Hull Panel 자동 생성
- Panel 위치 및 면적에 의한 Hole , Notch 자동 시공
- Panel 정보 수정시 연관된 정보의 자동 수정
- 최적화된 Thickness 및 Grade 정보 자동 산출
03. 간단한 수정 기능

- View, Seam, Shll Panel, Hull Panel 등 정보를 간단하게 수정 가능
- 각 Model별 속성을 수정하는 방식으로 수정
- Model 수정시 연관된 정보들이 자동 계산되어 수정 반영
04. Weight 자동 계산 기능

- 사용자가 다양한 Case를 Test후 최적의 Case 적용 가능
- 최종 선택된 Project를 색상으로 구분하여 선별적으로 관리
05. AM Interface 기능

- Smart Rudder 형상 정보를 AM에 동일하게 Modeling
- xml / sch Run 작업중 오류 발생시 오류 List에 포함된 항목 자동으로 수정해서 재실행
06. 자동 도면 생성 기능

- Modeling된 정보를 기반으로 2D 도면을 자동 생성
07. Casting 생성 기능

- Casting 영역의 Volume Modeling
- Surface & Compartment Tool의 Surface Macro 자동생성
  (Macro를 활용하여 AM Surface로 등록가능)
- Volume을 이용한 Weight 자동계산

구축효과

- 최적 Weight를 가지는 Rudder Modeling함으로 비용 절감
- 정확한 Model 정보 생성 및 규격화된 Drawing 정보 생성으로 인한 품질 향상
- 정보 Import / Export 기능을 이용하여 작업한 호선 정보를 공유함으로 정보 재사용률 향상
 

부산광역시 해운대구 센텀동로 57 디자인센터 507호 /(주)캐드윈시스템/대표 김철환

전화번호 : 051-743-2184 / Fax : 051-743-2186

Copyrightⓒ(주)캐드윈시스템 Rights Reserved.