Cadwin System. co. ltd - 네스팅 소프트웨어의 영원한 선두주자
  Cadwin System
  CadwinNesting
  EasyDesign
  SpisHull
  SmartLander
  SmartRudder
  SmartJig
  SmartWeld
  SmartPaint
  CableExpress
  PipeExpress
  BOMExpress
  Pipe/Duct Flow
  용역개발
  제품관리News
  기타관련자료
HOME > 제품소개 > CABLE ROUTING
- CABLE SCHEDULE 자동화란 전장설계의 기본설계 단계
   Wiring Diagram에서 생산설계의 설치도 뿐만 아니라 POR,
   BOM에 이르기까지 Cable 관련 Data를 일관되게 사용하여
   Data의 효율적인 관리 및 설계 Data를 MIS에 연동함으로써
   설계/구매/생산 정보를 통합 운영하는 것을 말한다.

Cable관련 Data의 기본설계와 생산설계 간의 단절에 따른 Data 작성에 대한 공수절감을 주 목적으로 하고 있으며, 이를 위해서 생산 설계에서 Modeling 하는 Tray, Penetration, Equipment 등의 정보를 근거로 Cable의 Node Plan을 작성하여, 이를 통한 Routing 정보 자동추출로 Cable Schedule 업무를 개선한다.

또한 Cable 관련 Data를 신조 종합관리 시스템과 연동하여 POR, BOM Data를 MIS 자재관리 시스템과 연계 하도록 한다.
- Cable의 최적 경로 탐색
- 장비와 노드간에 끝단 길이 자동 추출 기능
- 호선별 권한설정/Deck/block/Supplier Area 코드 관리
- Auto Routing시 Node별 관통 Cable Capacity Summary
- Cable 구매 물량 산출
- 전장케이블 관리 및 자동 케이블 배치 정보 제공
- Node Schematic Tree제공
- 다양한 전장 업무 지원 Report제공
- POR 정보와 ERP시스템의 통합화 (ERP 데이터 전송기능)
- 각종 케이블 테이터 자료 추출 최적화
- 케이블 테이터 입력사항 간편화/최소화
- Excel 업로드 및 다운로드 기능 지원
- USER의 편리한 데이터 조작환경 지원
- Data변경시 Log생성 및 추적기능
- POR발생시 마다 Revision 관리 및 Lock 기능

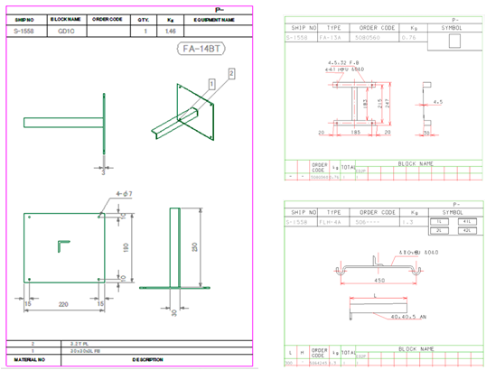
Electric Seat Drawing

- Standard Type Seat
- Special Type Seat
- Auto Dimension
- Plan / Sect. / Elev. / IOS
- Block 별 수량 집계
- 도면 Symbol 표시
- 중량, Type, Order Code

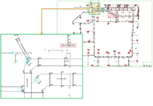
Electric Install Drawing'

- Outfitting 3D Model To 2D Draft Drawing
- Tray Name / Tray Support Height Display
- Drawing Management
- Model Attribute Auto Label Drawing
- Equipment Info Label Drawing
- Drawing Enlarge?Support Detail View Edit Function
- Dimension
- Node Schematic Auto Drawing
- Node Symbol(Node Name) Drawing
- Adjust Drawing Scale
- Frame / Lounge Ruler
- Support Drawing Additional Function
1. 설계자의 POR업무 최소화로 설계공수효율 극대화
2. 빠른 물량 산출 (리비젼관리를 통한 호선관리 및 동종호선 작업시 최소한의 작업)
3. 멀티유저의 사용으로 편리한 작업환경 (담당자간의 협업을 통한 작업환경 구성)-Multi-User간의
    version complex해결
4. 전장업무에 해당하는 대부분의 리포트 자동 생성 (Schedule, P.O.R, Drum List, Cable Tag등)
5. 최단거리산출로 인한 원자재구매 비용 최적화
 

부산광역시 해운대구 센텀동로 57 디자인센터 507호 /(주)캐드윈시스템/대표 김철환

전화번호 : 051-743-2184 / Fax : 051-743-2186

Copyrightⓒ(주)캐드윈시스템 Rights Reserved.